德州圳泽 水系统风机盘管,圳泽30年专注空调事业
- 按结构形式可分为:立式、卧式、壁挂式、卡式等,其中立式又分立柱式和低矮式;按安装方式可分为明装和暗装;按进水方位,分为左式和右式。壁……
产品详细





 按结构形式可分为:立式、卧式、壁挂式、卡式等,其中立式又分立柱式和低矮式;按安装方式可分为明装和暗装;按进水方位,分为左式和右式。壁挂式风机盘管机组全部为明装机组,其结构紧凑、外观好,直接挂于墙的上方。卡式(天花板嵌入式)机组,比较美观的进、出风口外露于顶棚下,风机、电动机和盘管置于顶棚之上,属于半明装机组。明装机组都有美观的外壳,自带进风口和出风口,在房间内明露安装。暗装机组的外壳一般用镀锌钢板制作。国家标准《风机盘管机组》(GB/T19232—2003) [2] 中规定风机盘管机组根据机外静压分为两类:低静压型与高静压型。低静压型机组在额定风量时的出口静压为0或12Pa,对带风口和过滤器的机组,出口静压为0;对不带风口和过滤器的机组,出口静压为12Pa;高静压机组在额定风量时的出口静压不小于30Pa。卧式暗装风机盘管机组选用主要控制参数额定风量、出口静压、输入功率、额定供冷量、额定供热量、噪声、水阻等。对于双管制水系统(适用于只按季节或只按空调区域进行供热或供冷转换的空调系统)的风机盘管机组,只配置一组盘管,冬夏供热/供冷兼用机型。对于四管制水系统(适用于供热/供冷频繁转换的空调系统)的风机盘管机组,应配置加热和冷却两组盘管的组合式机型。
按结构形式可分为:立式、卧式、壁挂式、卡式等,其中立式又分立柱式和低矮式;按安装方式可分为明装和暗装;按进水方位,分为左式和右式。壁挂式风机盘管机组全部为明装机组,其结构紧凑、外观好,直接挂于墙的上方。卡式(天花板嵌入式)机组,比较美观的进、出风口外露于顶棚下,风机、电动机和盘管置于顶棚之上,属于半明装机组。明装机组都有美观的外壳,自带进风口和出风口,在房间内明露安装。暗装机组的外壳一般用镀锌钢板制作。国家标准《风机盘管机组》(GB/T19232—2003) [2] 中规定风机盘管机组根据机外静压分为两类:低静压型与高静压型。低静压型机组在额定风量时的出口静压为0或12Pa,对带风口和过滤器的机组,出口静压为0;对不带风口和过滤器的机组,出口静压为12Pa;高静压机组在额定风量时的出口静压不小于30Pa。卧式暗装风机盘管机组选用主要控制参数额定风量、出口静压、输入功率、额定供冷量、额定供热量、噪声、水阻等。对于双管制水系统(适用于只按季节或只按空调区域进行供热或供冷转换的空调系统)的风机盘管机组,只配置一组盘管,冬夏供热/供冷兼用机型。对于四管制水系统(适用于供热/供冷频繁转换的空调系统)的风机盘管机组,应配置加热和冷却两组盘管的组合式机型。
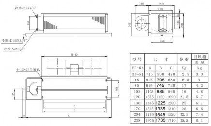
1:额定风量,国标型号后数字×10/h表示。
风机盘管机组简称风机盘管。它是由小型风机、电动机和盘管(空气换热器)等组成的空调系统末端装置之一。盘管管内流过冷冻水或热水时与管外空气换热,使空气被冷却,除湿或加热来调节室内的空气参数。它是常用的供冷、供热末端装置。
(3)排除室内有害气体和集中散发的热量与湿量。舒适空调房间的二氧化碳及卫生间的不良气味.工艺空调的生产车间所产生的有毒、有味等有害气体,以及大量散发热量和湿量的局部部位,风机盘管均需通道空调和排风设施予以消除,这样才能获得一个良好的室内空气环境。




 
			 
			 
			